
中央空調冷卻器在工作過程中產生的熱量通常是通過冷卻水帶走的。冷卻塔的作用是用熱交換冷凝器的冷卻水和塔中的空氣,使熱量傳遞到空氣中,并分散到大氣中。冷卻塔填料在增加散熱、延長冷卻水停留時間、增加換熱面積、增加換熱、均勻分布水等方面起著至關重要的作用。冷卻塔填料的安裝也與整個冷卻塔安裝的成功有關。接下來,我們將介紹安裝冷卻塔和更換冷卻塔填料的注意事項。
要求冷卻塔填料:
對中央空調冷卻塔填料的要求要是重量輕、強度高、阻燃性好、耐腐蝕、設計先進、通風組小、親水性強、接觸面積大。
更換冷卻塔填料的使用時間:
通常來說,中央空調冷卻塔的填充料使用時間較長。選擇質量好的填充料通常可以使用3-5年以上,然后才需要更換。然而,如果它們在重復使用過程中得到適當的清潔和維護,它們可以一直使用。因此,找一家專業的維修服務公司制定專業的維修方案,可以保證填充料的無限使用壽命。
冷卻塔填料的維護:
長期使用后,中央空調等原因,中央空調冷卻塔是一種水處理設備,經過長期使用后,會出現污垢,也就是常說的結垢,會導致填充料老化脫落。這些問題似乎很小,但實際上會影響冷卻塔的工作效率和使用壽命。因此,冷卻塔填料必須定期清洗和維護,常用的方法是清洗填充料和水槽。
1.如果結垢過嚴重,可采用化學清洗法(用藥劑沖洗)或物理方法(振動等)處理填充料上的水垢。),并考慮更換填充料。
2.水槽部需要清除產生的雜質。
3.排污管出口的雜質可在配管槽部打開,不排除的雜質可手動清除。
4.清洗過濾網填充料時,要注意其薄而脆弱的特性(多為PVC材料),謹慎處理。
冷卻塔實現三大要素的冷卻:
冷空氣與水的比比);冷空氣與水接觸的表面積;冷空氣與水接觸的時間。它是根據上述三個元素設計的。通過0.03MPa下高效低壓霧化裝置,將水噴射成0.5-1mm的霧滴,通過0.03MPa下高效低壓霧化裝置,將水噴射成0.5-1mm的霧滴,氣水接觸比聚氯乙烯填充氯乙烯填充物上的水分分布面積大10%;該裝置采用順向噴霧,有兩個過程:冷卻順流和逆流,冷卻時間比填充物長。
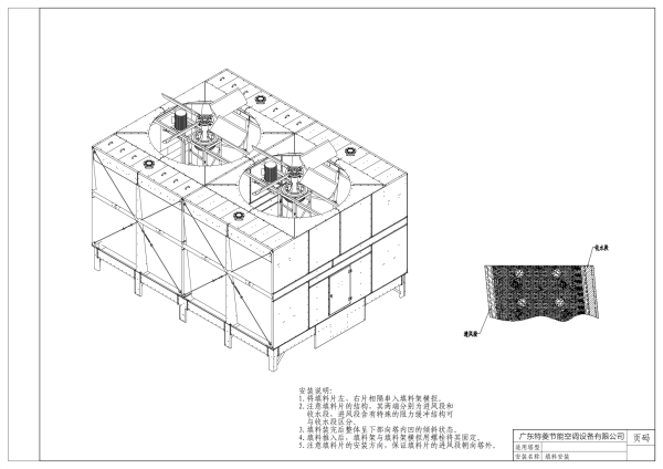
安裝冷卻塔填料時應注意哪些事項?
1.確保下柱和下進水管與地基接觸良好,基礎預埋鋼板,平整基礎安裝表面,確保在同一水面上,下柱和下進水管軸垂直基礎表面。
2.注意保證塔體組裝后的直徑,特別是上塔體出風口的直徑誤差應盡可能小。
3.當塔體分塊組裝連接時,應注意墊片的弧面與塔體的肋弧面粘結,并保證下殼組裝的水密性。
4.風機應安裝向上抽風,風機葉端和塔體之間的間隙應均勻,不超過100毫米。四片葉片應調整在同一角度,葉輪的旋轉平面應垂直于中心線。
5.淋水填充料層表面要求平整,間距均勻。
6.選擇循環泵時,應注意其流量與冷卻水量一致。使用時,冷卻塔應保持在設計量的5%以內,以防止水量過大,影響冷卻效果。
7.電源應采取安全措施。電源線接好后,電機接線盒應采取密封措施,防止潮氣進入,燒壞電機。
8.根據現場實際情況,可以通過改變法蘭上螺孔的方向來調整進出水管的方向。
廣東特陵空調公司從事中央空調的維護、清潔和維護、節能改造、銷售和安裝公司。我們擁有多年的冷卻塔行業維修經驗、一流的技術團隊、完善的服務流程和一流的服務質量。在數萬客戶的一致認可下,我們堅持為客戶提供超出預期的專業服務。您可以隨時與我們聯系,如果您有任何與中央空調冷卻塔相關的問題和需求。

恰當的冷卻塔電機安裝方法 冷卻塔電機的電機軸是一個短軸,因此中等水平規定不高。只需應用直尺將其向下移動就可以。機器設備震動比較大的緣故大部分是生產商應用的空心碳素鋼軸。因為薄厚很有可能不勻稱,震動不

根據《國務院辦公廳關于2022年部分節假日安排的通知》,廣東特菱空調2022年五一勞動節假期安排如下: 一、2022年4月30日(星期六)至5月4日(

廣東特菱節能空調設備有限公司通過國家高新技術企業認定備案,這是對公司近年來持續加大科技投入、大力強化發明專利、不斷提升核心技術研發能力的充分認可和鼓勵,將進一步推動公司在科技前沿、精細化建造等領域自

廣東特菱空調是專門從事制冷設備生產、銷售、安裝、維修保養、制冷配套工程方案與施工、冷卻塔維修改造為一體的專業性冷卻塔廠家。公司產品有:圓型冷卻塔、方型冷卻塔、超低噪音冷卻塔、工業冷卻塔、高溫冷卻塔、

各部門、各位員工: 根據《國務院辦公廳公布2022年放假安排》,結合公司的實際情況,廣東特菱空調現將端午節期間放假安排通知如下: 一、全體員工6月3

??2022年噪音新規《中華人民共和國噪聲污染防治法》來了,噪聲污染防治將有法可依。 ??《中華人民共和國噪聲污染防治法》今年6月5日起施行,《中華人民共和國環境噪聲污染防治法》同時廢止。近年來,廣

工業生產中使用的冷卻塔有多種型號可供選擇,在選擇時要綜合考慮性能參數等方面,冷卻塔選擇的參數主要是需要冷卻的設備類型.冷卻量.進水溫度和出水溫度.當地濕球溫度.泵和電機運行參數.水流速度.冷卻塔容量

雖然高端冷卻塔品牌具有高性能和良好的質量,但價格一直居高不下,這使得中小企業的采購停滯不前。我們如何找到一個高性價比的冷卻塔,具有合適的價格和優異的性能?隨著近年來中國制造業黃金含量的提高,中國制